020 Highvale DriveMarietta, GA 30064
Due to the health concerns created by Coronavirus we are offering personal 1-1 online video walkthough tours where possible.




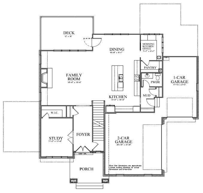
Bercher Homes is proud to present a new community just minutes from vibrant downtown Marietta. Nestled in one of Cobb County’s most desirable areas, this thoughtfully designed neighborhood features 22 beautiful homesites located in the highly sought-after Marietta High School district. With timeless architecture, well-proportioned lots, and a prime location near shopping, dining, and local events, this community offers the perfect blend of convenience and quality craftsmanship synonymous with Bercher Homes. With an open floor plan featuring the gathering and cooking areas downstairs and all bedrooms upstairs, the Brooks is available to build in Highvale. The covered front porch opens to foyer and office/flex room w/ closet. Ahead is the open concept layout w/ dining area, family room w/ wood-burning fireplace, built-ins, and lots of windows for natural light, adjacent to the generously sized kitchen. Enjoy the extensive cabinetry that features soft close doors and drawers, Bosch appliances, Quartz countertops, pendant lighting, large working island, and more. Adjacent to the kitchen is the scullery/ morning kitchen with additional cabinetry, sink, and windows galore, plus a walk-in pantry. The rear hallway entry from the 3-car garage finds the mudroom w/ lockers and powder bath. Upstairs the large primary bedroom features a trey ceiling, sitting area, and overlooks the backyard. The spa-like primary bathroom includes a large tile shower with a glass enclosure, double vanity, freestanding tub, and a huge walk-in closet. There are also 3 large secondary bedrooms, each with a private bathroom, and the laundry room. Additional standard features include extensive hardwood flooring, 10 ft ceilings w/ 8 ft solid core doors on the main floor, irrigation system, tankless water heater, double-hung Pella windows, 3-car garage, plus many more. In Highvale, this floorplan can be built as a slab or basement. For your peace of mind, we include with each home a Builder's Warranty and a Structural Warranty. Come and experience the Bercher Homes difference. With our unique, team approach to the design process, this can be the home of your dreams. List price here does not include buyer-specific upgrades and options. Lot premium may apply. Interested but looking for a different home setup? We have 8 unique floorplans available to build in Highvale! Homebuyers will enjoy our nearby design center, where you can personalize all your selections to make this home truly your own. At Bercher Homes, we believe in Great Homes, Great Life. Let’s build something great together!
| 2 weeks ago | Listing first seen on site | |
| 2 weeks ago | Listing updated with changes from the MLS® |
Listings identified with the FMLS IDX logo come from FMLS and are held by brokerage firms other than the owner of this website and the listing brokerage is identified in any listing details. Information is deemed reliable but is not guaranteed. If you believe any FMLS listing contains material that infringes your copyrighted work, please click here to review our DMCA policy and learn how to submit a takedown request.
© 2017-2026 First Multiple Listing Service, Inc.


Did you know? You can invite friends and family to your search. They can join your search, rate and discuss listings with you.